Skip To Content

6500 Deuster Road

Greenleaf, WI 54126 | Greenleaf, Village Of
  • $672,638
  • STATUS: Pending
  • ON SITE: 316 Days
  • ID#: 50305846
Pending
UPDATED: 85 min ago
$672,638
  • 4
    BEDS
  • 1
    ACRES
  • 2
    BATHS
  • 1
    1/2 BATHS
  • 2,378
    SQFT
  • $283
    $/SQFT
Neighborhood:
Type:
Single-Family Home
Built:
2026
County:

School Ratings & Info

School District:
Listing Office: Resource One Realty, LLC: 920-983-5450.


Description

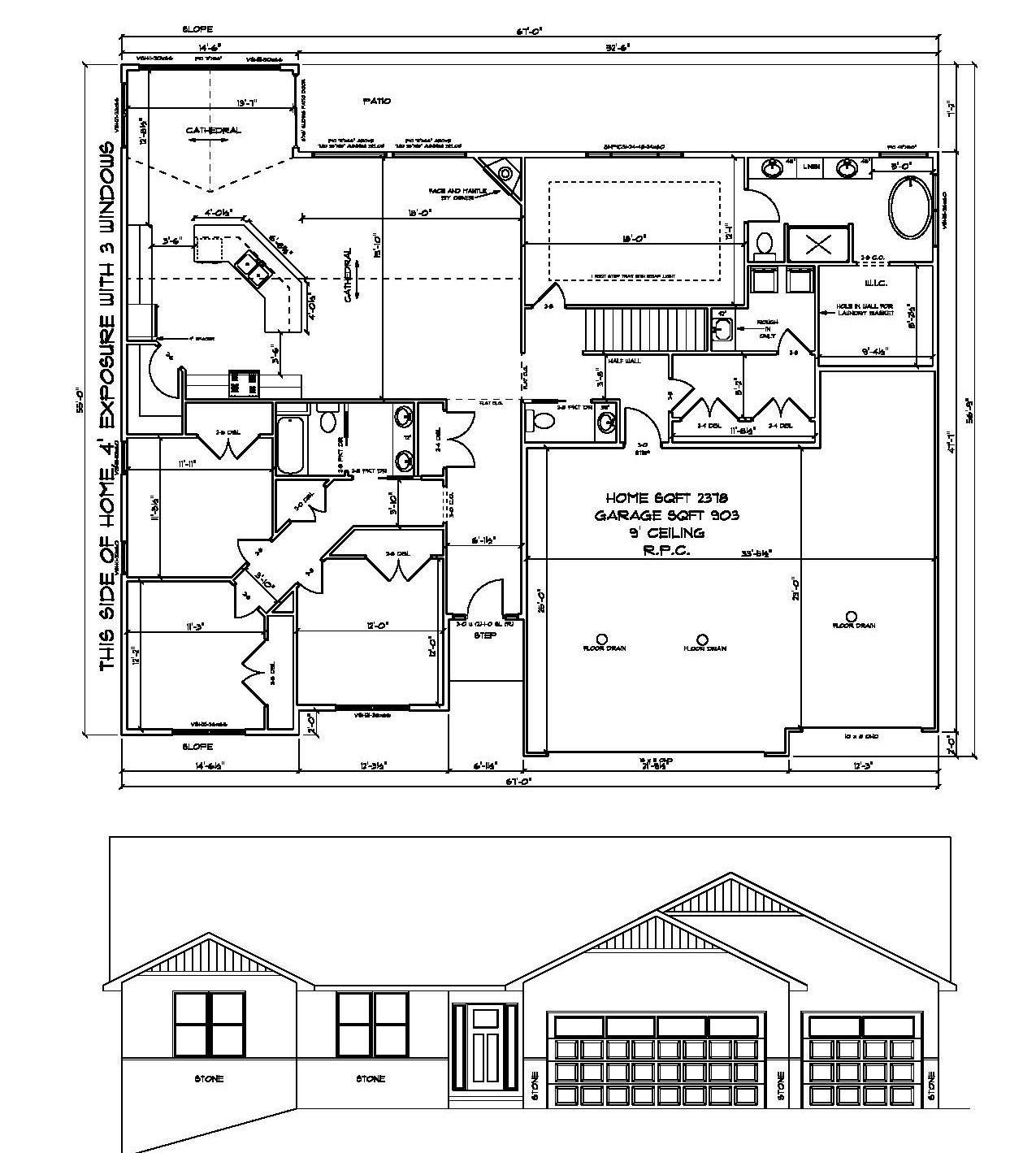
Experience luxury & comfort in this turnkey new construction by Robert Peters Construction on 1-acre builder-exclusive lot. The proposed 4-bedroom, 2.5-bathroom home offers 2378 sq ft main level living space, complemented by 3-car garage. Enjoy the kitchen complete w/maple cabinets, quartz countertops, and appliances, perfect for culinary enthusiasts. Open concept layout features a cozy corner fireplace & split bdrm design for added privacy. Primary bdrm offers walk-in closet & priv bath featuring dual sinks & walk-in shwr. Adt’l amenities include well, septic system, driveway & 14x14 patio, all included in price. Don't miss this Turnkey building opportunity! Final selections with builder to confirm pricing. Est complete 4-30-26.

Monthly Payment Calculator



© 2026 Realtors Association of Northeast Wisconsin. All Rights Reserved. Information received from other third parties: All information deemed reliable but not guaranteed and should be independently verified. All properties are subject to prior sale, change, or withdrawal. Neither listing broker nor Symes Realty, LLC nor RANW MLS shall be responsible for any typographical errors, misinformation, misprints, and shall be held totally harmless. Information is provided exclusively for consumers’ personal, non-commercial use, and may not be used for any purpose other than to identify prospective properties consumers may be interested in purchasing. Data last updated: 2026-02-14T22:29:06.47.
www.symesrealty.com/homes/162193163
Print Image

6500 Deuster Road Greenleaf, WI 54126

  • Price: $672,638
  • Status: Pending
  • On Site: 316 Days
  • Updated: 85 min ago
  • ID#: 50305846
4
Beds
2
Baths
1
½ Baths
1
Acres
2,378
SQFT
$283
$/SQFT
2026
Built
Neighborhood:
Greenleaf, Village Of
County:
Brown
Area:
Greenleaf, Village Of
School District:
Wrightstown Community
Property Description
Experience luxury & comfort in this turnkey new construction by Robert Peters Construction on 1-acre builder-exclusive lot. The proposed 4-bedroom, 2.5-bathroom home offers 2378 sq ft main level living space, complemented by 3-car garage. Enjoy the kitchen complete w/maple cabinets, quartz countertops, and appliances, perfect for culinary enthusiasts. Open concept layout features a cozy corner fireplace & split bdrm design for added privacy. Primary bdrm offers walk-in closet & priv bath featuring dual sinks & walk-in shwr. Adt’l amenities include well, septic system, driveway & 14x14 patio, all included in price. Don't miss this Turnkey building opportunity! Final selections with builder to confirm pricing. Est complete 4-30-26.
Exterior Features

Architectural Style Ranch Construction Materials StoneVinyl Siding Driveway Garage # 1-ConcreteGarage # 2-None Foundation Details Poured Concrete Parking Features AttachedGarage Door OpenerTandem Waterfront YN No

Interior Features

Above Grade Finished Area 2378 Appliances DishwasherMicrowaveRangeRefrigerator Basement FullFull Sz Windows Min 20x24Stubbed for Bath Below Grade Finished Area 0 Fireplace Features OneGas Garage1 Dimensions 33x47 Garage1 Number Cars 3 or 3.5 Cars Garage1 Type Attached-NonTandem Garage2 Type None Heating Forced Air Interior Features At Least 1 BathtubKitchen IslandPantrySplit BedroomWalk-in Shower Main Level Full Baths 2 Main Level Half Baths 1 Primary Bedroom Bath Primary Bath 1st FlPrimary Bath FullPrimary Bed 1st FloorPrimary Walk-in ClosetPrimary Walk-in Shower Rooms Bedroom 1 (Main Level 18x12) Bedroom 2 (Main Level 12x11) Bedroom 3 (Main Level 12x11) Bedroom 4 (Main Level 12x12) Kitchen (Main Level 14x14) Living Room (Main Level 19x18) Dining Room (Main Level 12x14) Other Room (Main Level 05x07) Other Room 2 (Main Level 06x08) Unit Type

Property Features

Accessibility Features 1st Floor Bedroom1st Floor Full Bath Association Annual Fee No Broker Owned 0 Builder Name Robert Peter Construction Building Style 1 Story Est Completion Date 2026-04-30 Farm 0 Flood Plain No For Sale Rent For Sale Heating Fuel Type Natural Gas Hobby Farm 0 Inclusions refrigeratorstovedishwashermicrowave14x14 patio Municipality Village of Greenleaf New Construction YN No Property Sub Type Single Family Residence Restrictive Covenant No Sewer Other Tax Annual Amount 401.34 To Be Built 0 Under Construction 1 Water Source Other Zero Lot Line 0 Zoning Residential

Listing provided courtesy of Resource One Realty, LLC: .920-983-5450


© 2026 Realtors Association of Northeast Wisconsin. All Rights Reserved. Information received from other third parties: All information deemed reliable but not guaranteed and should be independently verified. All properties are subject to prior sale, change, or withdrawal. Neither listing broker nor Symes Realty, LLC nor RANW MLS shall be responsible for any typographical errors, misinformation, misprints, and shall be held totally harmless. Information is provided exclusively for consumers’ personal, non-commercial use, and may not be used for any purpose other than to identify prospective properties consumers may be interested in purchasing. Data last updated: 2026-02-14T22:29:06.47.
 
https://bt-photos.global.ssl.fastly.net/ranw/orig_boomver_2_50305846-1.jpg https://bt-photos.global.ssl.fastly.net/ranw/orig_boomver_2_50305846-1.jpg https://bt-photos.global.ssl.fastly.net/ranw/orig_boomver_2_50305846-1.jpg
Logo
Symes Realty, LLC
1721 School Lane
Suamico WI, 54173
Listing Office: Resource One Realty, LLC: 920-983-5450.